Phase 2A – Expansion
Parking Lot, School Building, & Covered Courtyard – Expanding for a Brighter Future
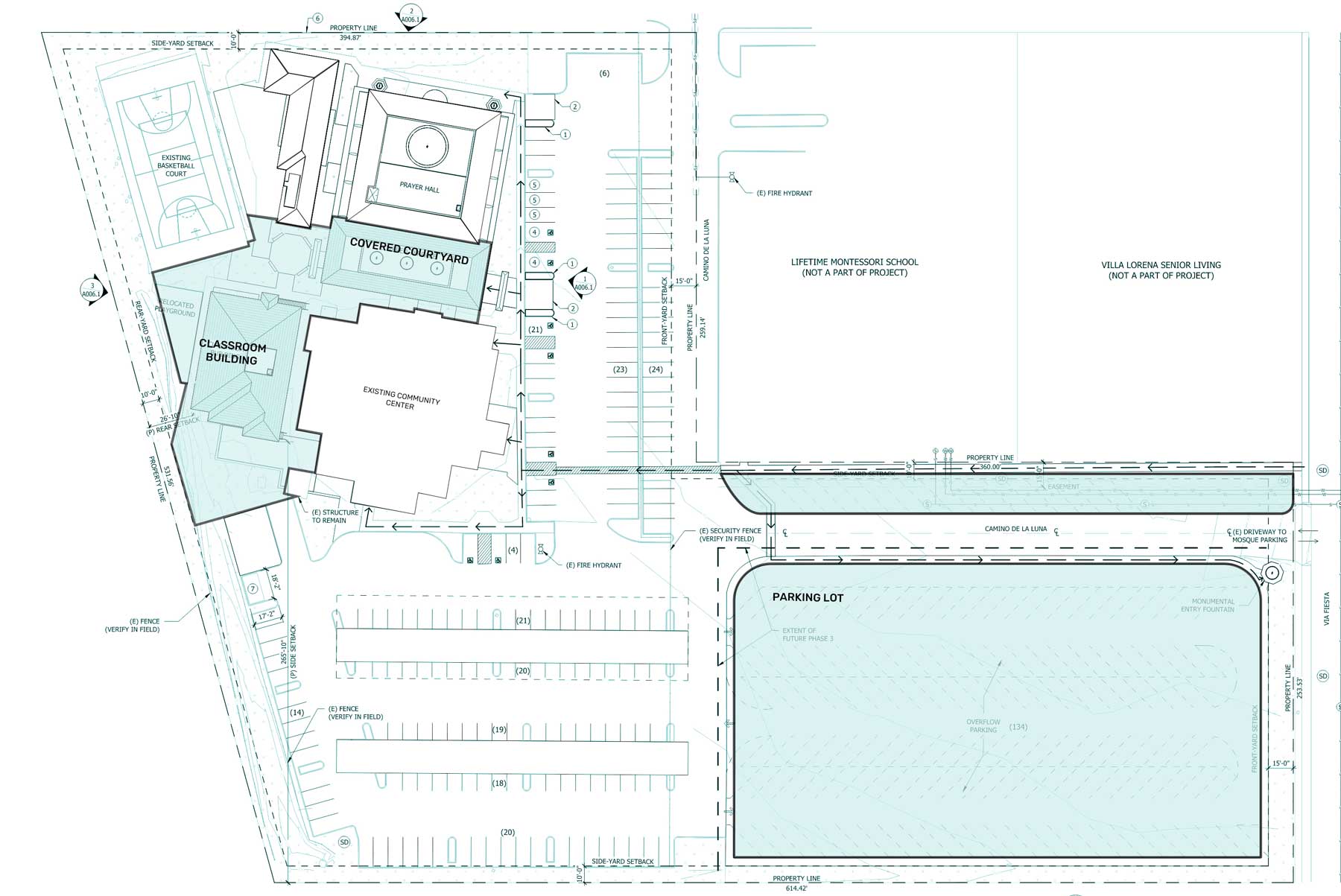
As our community continues to grow, so do our needs for enhanced facilities that support education, worship, and community engagement. To better serve our congregation, we are excited to announce Phase 2 of our Masjid Expansion Project, which focuses on enhancing the parking lot, expanding the school building, and developing a covered courtyard.
This initiative is designed to improve accessibility, create more learning spaces for our children, and provide a comfortable, multipurpose outdoor area for gatherings and events. With your support, we aim to build a welcoming environment that accommodates our growing community while ensuring convenience, safety, and a greater sense of togetherness.
Whoever builds a masjid in which the Name of Allah is mentioned, Allah will build a house for him in Paradise.
(Sunan Ibn Majah: 738)
Join us in this crucial effort as we take the next step in strengthening our masjid’s infrastructure for generations to come.
New Parking Lot & Access Road Improvement
New School Building With More Classrooms
New Outdoor Covered Courtyard
Al-Manar School Building with Classrooms
Education Space
- Classrooms (12)
- Multipurpose Rooms (2)
- Library
Administrative Offices
- Principal’s Office
- Assistant Principal’s Office
Additional Spaces
- Conference/Break Room
- Restrooms for School Children
Facilities
- Dedicated spaces for educational programs.
- Modern, Flexible Classroom Designs to support diverse learning needs.
Covered Courtyard
Purpose
- Versatile Multi-Purpose Area for various activities and events
- Year-round usability with a sheltered outdoor space
- Ideal for community gatherings and celebrations
- Provides protection from weather conditions while maintaining an open-air experience
- Encourages social interactions in a comfortable and welcoming environment





